Description
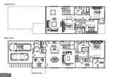
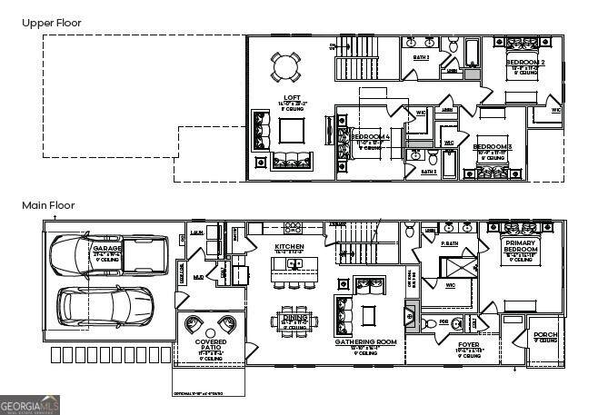
Welcome to Summerville, a charming new construction neighborhood located off of Jennings Mill Rd. $10,000 Buyer Incentive to be used however buyer needs - just minutes from shopping, dining, UGA Campus, and bustling downtown Athens. Traditionally-inspired, these watercolor homes echo the easy appeal of the coast with welcoming porches and rear garages. Step into our new Brooke floorplan and find yourself immersed in modern elegance. This spacious first floor is an entertainer's dream with an open concept kitchen, dining space,living space and the primary suite. This floor features high ceilings and plenty of natural light, as well as generous storage, a fireplace, a mudroom, and a powder room. Your gourmet kitchen is a chef's dream with quartz countertops, stainless steel appliances, a gas cooktop, a walk-in pantry, and an oversized kitchen island. Upstairs you will find a spacious loft area perfect for a teen suite or a media space, down the hall are three bedrooms, and two full baths. With ample space and storage throughout, these new builds will not last long! Tour today to find your little piece of paradise.
-
4BEDS
-
0.12ACRES
-
3BATHS
-
11/2 BATHS
-
2,478SQFT
-
$204$/SQFT
School Information
Description
Welcome to Summerville, a charming new construction neighborhood located off of Jennings Mill Rd. $10,000 Buyer Incentive to be used however buyer needs - just minutes from shopping, dining, UGA Campus, and bustling downtown Athens. Traditionally-inspired, these watercolor homes echo the easy appeal of the coast with welcoming porches and rear garages. Step into our new Brooke floorplan and find yourself immersed in modern elegance. This spacious first floor is an entertainer's dream with an open concept kitchen, dining space,living space and the primary suite. This floor features high ceilings and plenty of natural light, as well as generous storage, a fireplace, a mudroom, and a powder room. Your gourmet kitchen is a chef's dream with quartz countertops, stainless steel appliances, a gas cooktop, a walk-in pantry, and an oversized kitchen island. Upstairs you will find a spacious loft area perfect for a teen suite or a media space, down the hall are three bedrooms, and two full baths. With ample space and storage throughout, these new builds will not last long! Tour today to find your little piece of paradise.
© 2025 Georgia Multiple Listing Service, Inc. All rights reserved. The data relating to real estate for sale or lease on this web site comes in part from GAMLS. Real estate listings held by brokerage firms other than Engel & Völkers Golden Isles are marked with the GAMLS logo or an abbreviated logo and detailed information about them includes the name of the listing broker. IDX information is provided exclusively for consumers' personal, non-commercial use and may not be used for any purpose other than to identify prospective properties consumers may be interested in purchasing. Information is deemed reliable but is not guaranteed accurate by GAMLS or Engel & Völkers Golden Isles. Data last updated: 2025-11-09T13:09:43.243.